生產建設
首頁 > 生產經營 > 生產建設
全力破題 胡家河礦按下水害治理“快進鍵”
水害是煤礦重大災害之一。近期,胡家河礦成功施工402104備采工作面大口徑深孔排水立孔,徹底解決了402盤區排水難題,標志著礦井水害治理從被動應對向事前預防轉變,按下了水害治理的“快進鍵”。
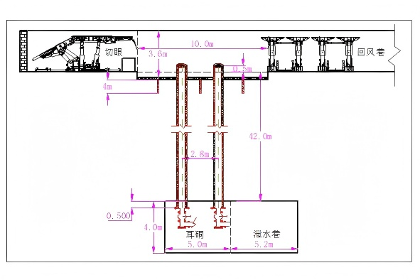
據了解,該礦402104備采工作面,西側和北側均為老空積水區,導致大量老空水匯流至工作面上隅角,涌水量高達300m3/h,原有的排水系統已無法滿足安全生產需求,嚴重威脅礦井安全生產。為此,該礦組織相關技術人員召開專題研討會,各專業人員圍繞現場作業實際對存在的風險點、技術措施、施工工藝等進行了系統討論研究,按照“清污分離、過程管控、綜合防治”的原則,最終決定實施大口徑深孔+底板泄水巷排水技術。

面對地質條件復雜、施工空間狹小、孔中長期淋水、鉆孔塌孔等技術難題。施工過程中,該礦采用正向鉆進、反向擴孔施工技術,施工直徑800mm、深度42m的兩個排水立孔,確保了鉆孔的垂直度和成孔質量,并通過排水立孔將積水引入402104泄水巷,形成高效的排水通道,最大排水能力1000m3/h,有效降低了礦井水害風險。
“在排水管路安裝過程中,面對地層巖性變化、大水沖刷而導致的塌孔、堵孔問題。我們詳細記錄每一次出現的狀況,深入分析問題產生的原因,并及時進行研判,在不斷嘗試與探索中,高質量完成了管路安裝任務。”該礦地測防治水部負責人介紹道。
水害防治工作任重道遠。該礦將繼續在持續淋水條件下鉆孔環形空間注漿封堵方面攻堅克難、創新方法,加強礦井涌水規律、充水因素分析、突水機理研究,不斷推進水害防治技術創新,助力礦井綠色、高效、安全發展。(田磊 韓定鋒)
編輯:達文娟


